Épít-ésszel kérdőív

Épít-ésszel verseny I. foruló - szakmaismereti kérdőív 2022

Kedves Versenyzők!
A verseny első fordulójában egy szakmaismereti kérdőív kitöltése a feladat. A kérdőív kitöltésénél bátran használjátok a Google-t.
Az 1. forduló és a jelentkezés 2022. február 14-én 14.00-kor zárul, csak az eddig beérkező űrlapokat tudjuk elfogadni.
Azok a csapatok jutnak tovább, akik legalább 85%-os eredményt érnek el. A második fordulóban egy építményt, házikót, makettet kell majd megépítenetek.

A kérdőív kitöltése várhatóan 45 percet vesz majd igénybe!

1. Keressétek párját! A következő munkákat melyik alábbi szakmunkás készíti el? A leírások alá írjátok be a megfelelő betűjeleket!

a. Asztalos
b. Betonacél szerelő
c. Ács
d. Szárazépítő
e. Kőműves
f. Bádogos
g. Burkoló
h. Lakatos

2. Keressétek meg a párját! Melyik épület melyik építészeti stílus szerint épült? Válasszátok ki a képek alatt a megfelelő stílust!

3. Állítsátok időrendi sorrendbe a következő építészeti stílusokat, majd a számokat sorban írjátok a megoldás helyére!

1. román
2. klasszicista
3. reneszánsz
4. gótikus
5. római
6. barokk
7. görög
8. modern
9. eklektikus
10. egyiptomi
11. bizánci

4. Rakd sorrendbe az építkezés különböző szakaszait!

A. Nyílászárók beépítése, illesztése
B. Tereprendezés, kulcsátadás (használatbavétel)
C. Függőleges és vízszintes teherhordó szerkezetek (falak és födémek), lépcsők alakítása
D. Közművek kiépítése, külső és belső burkolás, vakolás, festés
E. Tető elkészítése
F. Tervezés
G. Földmunkák
H. Alapozás, talajvíz és talajnedvesség elleni szigetelés

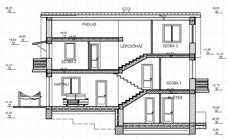
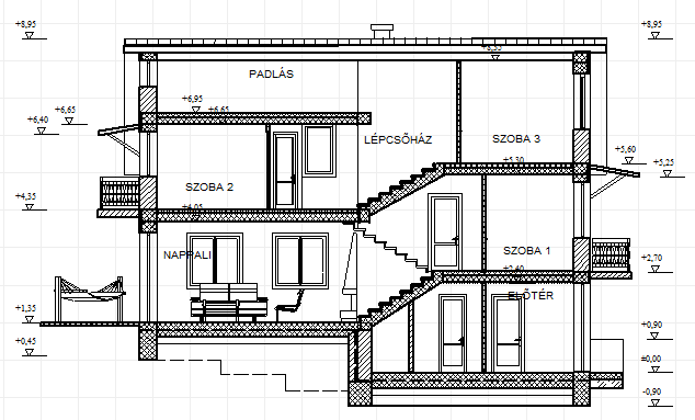
5. Jó megfigyelők vagytok? A következő metszetek egy félszint eltolásos ház két metszetrajzát mutatják. 10 különbség van közöttük. Keressétek meg őket!

Az üres sorokba írjátok le a különbségeket. Próbáljatok minél pontosabban fogalmazni!

6. Keressétek meg a párját! 8 híres modern építészeti alkotás képét látjátok. Válasszátok ki a listából a neveiket.

7. Fejtsétek meg a keresztrejtvényt! El van rejtve benne a jó építész egyik nagyon fontos jellemzője.

8. Jelöljétek be a mesterséges eredetű építőanyagokat!

8. Jelöljétek be a mesterséges eredetű építőanyagokat!

9. Párosítsátok a képet a gép nevével.

10. Az alábbi számozott ábrán a cementgyártás folyamatát látjátok. Írjátok a folyamat mellé, melyik sorszámhoz tartozik.

11. A képen hagyományos kőműves szerszámokat láttok. Rendeljétek a betűk mellé a szerszám megnevezését.

12. Válasszátok ki a helyeset.

Miből áll a beton?
Miből készül a habarcs?
Milyen hőmérséklet tartományban lehet hidegburkolatot készíteni?

13. Számold ki!

Egy családi ház kertjét szeretném elkeríteni és befüvesíteni. A kert téglalap alakú, oldalai 8m és 11m.

14. Melyik építőanyagra ismersz a leírásból?

15. Próbáld kitalálni, melyik helyiség hol lehet a lakásban!

Közelgő rendezvényeink